- 软件介绍
- 相关版本
- 应用信息
- 相关文章
- 猜你喜欢
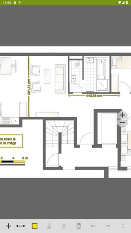
ImageMeter是一款非常实用的手机应用程序,可以帮助用户在测量任何物品时更加准确和方便。使用此功能,您还可以轻松地测量因其他原因而难以到达或难以测量的地方的尺寸。ImageMeter还支持公制和英制单位(小数英寸和小数英寸),这些独特的功能将证明为这个应用程序卖得这么好。
应用介绍
1、用户可以使用ImageMeter来测量长度、角度、圆形和任意形状的区域。
2、该应用程序可以自动完成值输入DPI,支持多种预设文本和自动文本格式的文本注解。
3、此外它还可以进行上下文相关的光标捕捉,可以快速准确地绘制。

应用说明
1、用户只需连接,然后每次输入数据时进行测量。
2、ImageMeter支持多种单位,可以自动完成值输入DPI,支持各种预设文本和自动文本格式的文本注解。
3、ImageMeter的另一个特殊功能是,用户可以直接在图像上工作和书写手稿。
应用特点
1、即使所述测量单元被自动传输,也可以进行测量。
2、ImageMeter还可以通过蓝牙连接到激光测量仪,可以测量长度、面积和角度。
3、不再需要绘制复杂的拉伸;现在,您只需要拍照并操作“ImageMeter”即可。
应用优点
1、用户只需要使用已知尺寸的参考物体校准图像,ImageMeter便可以使您在图像中进行测量。
2、ImageMeter的工作原理非常简单,它可以处理所有透视图的缩短,并且仍然可以正确计算测量值。
3、该应用程序还支持用户在图像上书写文字以保存笔记。
应用描述
1、ImageMeter支持各种工作注意事项,如蓝牙连接徕卡迪士通激光测距仪的长度、面积和角度。
2、这些特殊功能使ImageMeter成为一款非常实用的手机应用程序,可以帮助用户在测量任何物品时更加准确和方便。
- 
                            
                                 拍照修图软件 拍照修图软件拍照修图软件哪个好?很多用户都想要一款万能的拍照修图软件,那么小编推荐几款好用的拍照修图软件,无论是初学者或者专业人士都能轻松地使用它来优化自己的照片。强大的编辑功能、多种滤镜选择以及智能选区工具都使... 
- 
                            
                                 东风小说 4.06.00 安卓版
                            
                            9.5 MB |06-07 东风小说 4.06.00 安卓版
                            
                            9.5 MB |06-07
- 
                            
                                 雷霆游戏会员 5.30.82 安卓版
                            
                            61.1 MB |06-07 雷霆游戏会员 5.30.82 安卓版
                            
                            61.1 MB |06-07
- 
                            
                                 TVBox云星 1.0.0 安卓版
                            
                            13.4 MB |06-07 TVBox云星 1.0.0 安卓版
                            
                            13.4 MB |06-07
- 
                            
                                 空火影视TV 1.1.6 安卓版
                            
                            20.7 MB |06-07 空火影视TV 1.1.6 安卓版
                            
                            20.7 MB |06-07
- 
                            
                                 青兔馆无广告 6.7 安卓版
                            
                            2.1 MB |06-07 青兔馆无广告 6.7 安卓版
                            
                            2.1 MB |06-07
- 
                            
                                 知吾影视 5.1.9.05 安卓版
                            
                            34.9 MB |06-07 知吾影视 5.1.9.05 安卓版
                            
                            34.9 MB |06-07
- 
                            
                                 3D指尖壁纸 1.0.2 安卓版
                            
                            47.5 MB |06-07 3D指尖壁纸 1.0.2 安卓版
                            
                            47.5 MB |06-07
- 
                            
                                 智行速配司机端 1.0.0 安卓版
                            
                            26.5 MB |06-07 智行速配司机端 1.0.0 安卓版
                            
                            26.5 MB |06-07
- 
                            
                                 手机电台软件 手机电台软件手机电台软件是一类可以让用户随时随地收听广播的应用软件,其中包含了各种类型的音频内容,例如:新闻、音乐、娱乐、情感等。在这里我们为大家推荐几款优秀的手机电台软件,让你不错过任何一刻。... 
- 
                            
                                 3D指尖壁纸 1.0.2 安卓版
                            
                            47.5 MB |06-07 3D指尖壁纸 1.0.2 安卓版
                            
                            47.5 MB |06-07
- 
                            
                                 知吾影视 5.1.9.05 安卓版
                            
                            34.9 MB |06-07 知吾影视 5.1.9.05 安卓版
                            
                            34.9 MB |06-07
- 
                            
                                 青兔馆无广告 6.7 安卓版
                            
                            2.1 MB |06-07 青兔馆无广告 6.7 安卓版
                            
                            2.1 MB |06-07
- 
                            
                                 空火影视TV 1.1.6 安卓版
                            
                            20.7 MB |06-07 空火影视TV 1.1.6 安卓版
                            
                            20.7 MB |06-07
- 
                            
                                 TVBox云星 1.0.0 安卓版
                            
                            13.4 MB |06-07 TVBox云星 1.0.0 安卓版
                            
                            13.4 MB |06-07
- 
                            
                                 雷霆游戏会员 5.30.82 安卓版
                            
                            61.1 MB |06-07 雷霆游戏会员 5.30.82 安卓版
                            
                            61.1 MB |06-07
- 
                            
                                 东风小说 4.06.00 安卓版
                            
                            9.5 MB |06-07 东风小说 4.06.00 安卓版
                            
                            9.5 MB |06-07
- 
                            
                                 生活论坛软件 生活论坛软件生活论坛软件有哪些?有没有用户多一点的生活论坛app?很多手机生活论坛app包含了各种热门话题和领域。用户可以在这里发表自己的观点、分享自己的经验,并与其他用户进行交流。知乎还有很多优秀作者,在他们撰... 
- 
                            
                                 苍穹TV 2.0 安卓版
                            
                            19.3 MB |06-07 苍穹TV 2.0 安卓版
                            
                            19.3 MB |06-07
- 
                            
                                 零花钱tv版 2.2.5.11 安卓版
                            
                            24.8 MB |06-07 零花钱tv版 2.2.5.11 安卓版
                            
                            24.8 MB |06-07
- 
                            
                                 高清壁纸锁屏 2.0.1 安卓版
                            
                            29.2 MB |06-07 高清壁纸锁屏 2.0.1 安卓版
                            
                            29.2 MB |06-07
 
             
                             
                             
                             
                             Picut 1.2.4 安卓版
                        Picut 1.2.4 安卓版
                     XA变声器 v1.3.9 安卓版
                        XA变声器 v1.3.9 安卓版
                     TorchFileMaster 1.0.2 安卓版
                        TorchFileMaster 1.0.2 安卓版
                     视频剪辑工厂 26.9.48 安卓版
                        视频剪辑工厂 26.9.48 安卓版
                     乐趣浏览器 1.2.3 安卓版
                        乐趣浏览器 1.2.3 安卓版
                     Chordaiapk 2.4.11 安卓版
                        Chordaiapk 2.4.11 安卓版
                     7399游戏盒极速版 5.1.2905 安卓版
                        7399游戏盒极速版 5.1.2905 安卓版
                     AdobePremiereRush 2.6.0.2378 安卓版
                        AdobePremiereRush 2.6.0.2378 安卓版
                     泰裤辣浏览器极速版 1.0.0 安卓版
                        泰裤辣浏览器极速版 1.0.0 安卓版
                     音效均衡器 2.0.0 安卓版
                        音效均衡器 2.0.0 安卓版
                     戏曲在线 v1.0.1 安卓版
                        戏曲在线 v1.0.1 安卓版
                     文本分割器 1.4.9 安卓版
                        文本分割器 1.4.9 安卓版
                    

















 Canon Camera Connect 3.2.30.34 安卓版
                        Canon Camera Connect 3.2.30.34 安卓版
                         lutube视频 1.0 安卓版
                        lutube视频 1.0 安卓版
                         北京东城 2.4.2 安卓版
                        北京东城 2.4.2 安卓版
                         依依视频播放器 1.2 安卓版
                        依依视频播放器 1.2 安卓版
                         每刻闹钟 4.10.2 安卓版
                        每刻闹钟 4.10.2 安卓版
                         快播 1.0.2 安卓版
                                                        快播 1.0.2 安卓版
                                                         番茄免费小说 6.3.9.32 安卓版
                                                        番茄免费小说 6.3.9.32 安卓版
                                                         尤美圈 3.3.5 安卓版
                                                        尤美圈 3.3.5 安卓版
                                                         鄂公网安备42011502001609号
鄂公网安备42011502001609号